Биокамин.рф
Гипермаркет каминов
г. Адлер
Ежедневно 10.00-20.00
улица Кирова, 58


8 (800) 100-10-78 Обратный звонок
  • Наши проекты
  • Проект № 561. Биокамин в черном матовом портале из МДФ с автоматическим топливным блоком A5 Реализованные проекты1
20 Июл 2020
Москва, Константин

Проект № 561. Биокамин в черном матовом портале из МДФ с автоматическим топливным блоком A5

20 Июл 2020
Москва, Константин

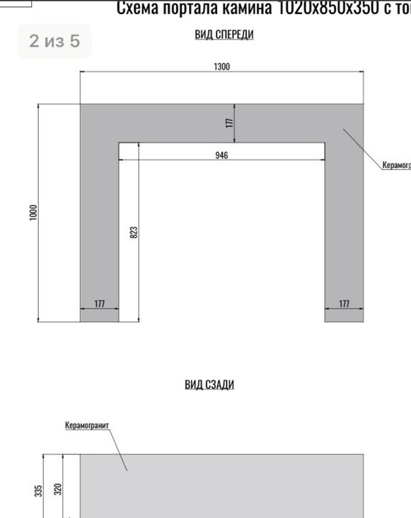
Сделали портал из МДФ черного матового цвета и изготовили корпус очага из металла, и в качестве горелки установили автоматический топливный блок со следующими характеристиками:

- Подключение к электросети: требуется розетка 220 V.

- Подключение к дымоходу или вытяжке: не требуется.

- Разрешительная документация: не требуется.

- Особенности установки: легко монтируется в любую горизонтальную поверхность (внахлест, заподлицо) без сложных монтажных работ.

- Управление: пульт дистанционного управления, беспроводная точка доступа по Wi-Fi - со смартфона, планшета или компьютера с помощью веб-интерфейса.

- Окраска панели: любой цвет по шкале Ral.

- LED-дисплей. Интеллектуальная система контроля с автоотключением.

- 3 уровня регулировки пламени: максимальный, нормальный, экономный.

- Индикатор количества топлива на дисплее. Индикатор высоты пламени на дисплее.

- Датчики контроля (температурный датчик, датчик перелива топлива, СО2 датчик и т.д.).

- Индикаторы режимов работы.

Характеристики

  • Высота
    1100
  • Ширина
    980
  • Цвет
    Молочный
  • Материал топливного блока
    Нержавеющая сталь 3 мм

Поделиться статьей:

Товары из кейса

Видеообзоры наших каминов

Видеообзор Биокамина Kratki GOLF

Видеообзор Биокамина Kratki BRAVO

Смотреть все

Смотрите так же

Online-показ

Для всех регионов РФ

Приглашаем вас на онлайн-показ самых современных и востребованных каминов! Вы сможете не только оценить внешние преимущества понравившейся модели не выходя из дома, но и самостоятельно сравнить разные варианты и проконсультироваться со специалистом. Ждем вас в гости!
Проведем видео показ удобным
для вас способом
call [#192] Created with Sketch. Позвонить
WhatsApp